Casa semindipendente in vendita

Varese, Via Conte Verde - Bizzozero
€ 205.000
10 locali 10 locali
288 Mq 288 Mq
4 bagni 4 bagni

Casa semindipendente in vendita

Varese, Via Conte Verde - Bizzozero

Descrizione annuncio

Segui la nostra pagina Facebook “Gruppo Tecnocasa (Varese Viale Borri)” o il nostro profilo Instagram per visionare in anteprima le nostre nuove proposte immobiliari.

Stabile Terra Cielo in Vendita a Bizzozero – Ottima Opportunità d’Investimento

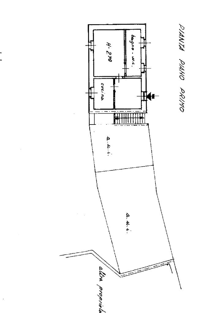
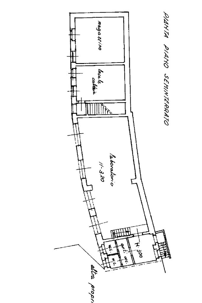
Nel cuore di Bizzozero, proponiamo in vendita un intero stabile terra-cielo, libero su tre lati, composto da tre appartamenti bilocali attualmente locati, che garantiscono una rendita immediata, e un laboratorio di circa 110 mq con area esterna di pertinenza esclusiva.

L’immobile rappresenta una soluzione ideale per investitori o per chi desidera coniugare abitazione e attività lavorativa. I bilocali sono già affittati e generano una buona redditività. Il laboratorio, spazioso e versatile, può essere utilizzato come spazio artigianale, deposito o riconvertito in abitazione, previa verifica delle normative urbanistiche.

Le condizioni generali dello stabile sono buone. Sono previsti lavori di ristrutturazione non invasivi, principalmente di ammodernamento e miglioramento dell'efficienza energetica, offrendo quindi la possibilità di valorizzare ulteriormente l'immobile con un investimento contenuto.

Un'opportunità interessante sia per uso personale che per messa a reddito.

Devi vendere o permutare il tuo immobile per acquistare? Chiamaci per una valutazione del tuo immobile gratuita e senza impegno.

Mostra tutto

Nelle vicinanze

Trasporto pubblico Trasporto pubblico
Malnate
Malnate
2,3 Km
Bizzozero (Via Nabresina)
Bizzozero (Via Nabresina)
420 m
Monte Generoso (Via dei Vigno)
Monte Generoso (Via dei Vigno)
720 m
Gazzada-Schianno-Morazzone
Gazzada-Schianno-Morazzone
2,4 Km
Ricariche auto elettriche Ricariche auto elettriche
Palestre Sporting | EnelX
950 m
EnelX Parcheggio del Bollerino
1,9 Km
Varese Sebenico | EnelX
2,0 Km
Ristorante Crotto Valtellina | e-Station
2,1 Km
Iper Varese
2,1 Km
Scuole Scuole
Scuole
180 m
Università degli Studi dell'Insubria - Campus Bizzozero
730 m
Centro di Formazione Personale Varese
1,0 Km
Istituto Comprensivo Anna Frank
1,5 Km
Scuola Primaria Statale Giovanni Pascoli
1,8 Km
Farmacia Farmacia
Farmacia
160 m
Farmacia Santa Maria
1,3 Km
Dispensario farmaceutico Baraldi
1,8 Km
Iper Farma
2,0 Km
Farmacia dell'ospedale
2,2 Km
Ospedali Ospedali
Padiglione 17 - C.R.T.
890 m
Ospedale di Circolo - Fondazione Macchi
2,1 Km
Ospedali
2,3 Km
Ospedale Filippo Del Ponte
3,0 Km
Supermercati Supermercati
Carrefour
870 m
LD
1,6 Km
Esselunga di Viale Borri
1,8 Km
Iper
2,0 Km
Tigros
2,4 Km
Negozi Negozi
Negozi
1,4 Km
Buratti
2,1 Km
Bar Bar
Non solo bar
1,5 Km
Bar
1,7 Km
Bar Nilo
1,7 Km
Rock'n' roll
2,0 Km
Bar Lapesa 17
2,2 Km
Ristoranti Ristoranti
Ristoranti
220 m
Al vecchio convento
280 m
Pizzeria "Senza Nome"
350 m
La vecchia cantina
470 m
Rojac Cafè
900 m
Mostra tutto

Caratteristiche

Rif.:
61111375
Piano:
Su più livelli di 2
Totale piani:
2
Box:
1
Posti auto:
1
Camere da letto:
3
Mostra tutto
Prezzo Prezzo
€ 205.000
Rata mutuo Rata mutuo
€ 978 / mese
Spese annue Spese annue
€ 0
Proponi il tuo prezzoProponi il tuo prezzo

Classe Energetica

G
G
G
G
G
G
G
G
G
EP globale non rinnovabile:
300.00 kW h/m² anno
EP globale rinnovabile:
300.00 kW h/m² anno
EP invernale del fabbricato:
EP estiva del fabbricato:
Anno di costruzione:
1960
Riscaldamento:
Autonomo
Tipo impianto:
A radiatori
Tipo alimentazione:
Metano

Ti interessa visionare l'immobile?

Fissa un appuntamento  Fissa un appuntamento

Richiedi informazioni

Clicca su Leggi per aprire l'informativa
* Questi campi sono obbligatori

Calcola il tuo mutuo

Semplice e senza impegno
Anticipo

( % )
Mutuo

( % )

pochi semplici passi

inserisci i tuoi dati
Questionario completato
Grazie per aver richiesto un appuntamento senza impegno con un nostro Consulente del Credito e Assicurativo.

Hai inserito correttamente tutti i dati necessari e a breve riceverai una e-mail con un link da convalidare per inviare i tuoi dati.
Affiliato
Studio Varese Sas
Viale Luigi Borri, 100 21100 Varese (VA)
Viale Luigi Borri, 100 21100 Varese (VA)
Zona: Varese Viale Borri
Mostra su mappa
Orari: Lun - Ven: 09.00 - 12.30 / 15.00 - 19.30 Sabato: 09.00 - 12.30
Affiliato
Studio Varese Sas
Viale Luigi Borri, 100 21100 Varese (VA)

2026 Tecnocasa Franchising S.p.A. - P. IVA 08365160152 - Via Monte Bianco 60/A 20089 Rozzano (MI). Ogni agenzia ha un proprio titolare ed è autonoma. Privacy policy | Policy utilizzo | Cookie policy