Trilocale in vendita

Varese, Via Cadore - Giubiano
€ 119.000
3 locali 3 locali
82 Mq 82 Mq
1 bagno 1 bagno

Trilocale in vendita

Varese, Via Cadore - Giubiano

Descrizione annuncio

Segui la nostra pagina Facebook “Gruppo Tecnocasa (Varese Viale Borri)” o il nostro profilo Instagram per visionare in anteprima le nostre nuove proposte immobiliari.

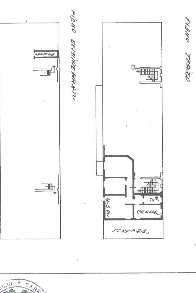
Trilocale panoramico all’ultimo piano con grande terrazzo – Giubiano

In zona Giubiano, strategica e servitissima, a pochi passi da ospedali, università e principali servizi, proponiamo trilocale all’ultimo piano, terzo, senza ascensore.

L’appartamento si distingue per un grandissimo terrazzo panoramico, ideale per momenti di relax all’aperto, con splendida vista aperta sulle montagne e sulla città.

L’immobile è composto da cucinotto separato, soggiorno, due camere da letto, di cui una con balconcino privato, bagno finestrato, ampio terrazzo panoramico e cantina.
L’immobile non dispone di un posto auto privato; è tuttavia possibile parcheggiare negli spazi condominiali non assegnati.

Soluzione molto interessante come investimento grazie alla posizione e alla vicinanza alle strutture sanitarie, oltre a essere comoda per frontalieri direzione Svizzera.

Zona tranquilla ma perfettamente collegata, vista aperta e luminosa, ottima rendita potenziale.

Ideale per chi cerca un immobile da mettere a reddito o un’abitazione funzionale in una delle zone più richieste di Varese.

Devi vendere o permutare il tuo immobile per acquistare? Chiamaci per una valutazione del tuo immobile gratuita e senza impegno.

Mostra tutto

Nelle vicinanze

Trasporto pubblico Trasporto pubblico
Varese
Varese
550 m
Varese Nord
Varese Nord
690 m
Cadore 18 (galmarini)
Cadore 18 (galmarini)
50 m
Trasporto pubblico
60 m
Ricariche auto elettriche Ricariche auto elettriche
Varese Leonardo da Vinci | EnelX
360 m
Varese Sebenico | EnelX
690 m
Varese Piazza Monte Grappa | EnelX
1,1 Km
Varese Marcello | EnelX
1,6 Km
Palestre Sporting | EnelX
1,7 Km
Scuole Scuole
Scuola Elementare Giuseppe Parini
270 m
Scuola Elementare "Ugo Foscolo"
690 m
Scuola dell'infanzia Gianni Rodari
760 m
Le Costellazioni
780 m
DICOM - Università degli Studi dell'Insubria
840 m
Farmacia Farmacia
Farmacia
330 m
Farmacia dell'ospedale
560 m
Farmacia Belforte
760 m
cucinArredi
930 m
dott. Mandelli Contegni
1,0 Km
Ospedali Ospedali
Ospedale Filippo Del Ponte
420 m
Ospedale di Circolo - Fondazione Macchi
480 m
Padiglione 17 - C.R.T.
1,8 Km
Clinica La Quiete
2,1 Km
Supermercati Supermercati
Tigros
260 m
Carrefour
720 m
Esselunga di Viale Borri
820 m
Billa
890 m
CO.P.A.C. arl
990 m
Negozi Negozi
Mini Mix
620 m
Colombo Marzoli
690 m
Buratti
700 m
Pancaffè Morosini
710 m
Angelucci
730 m
Bar Bar
Pub Ariete
80 m
Bar Cadore
210 m
Tsunami Café
500 m
Rock'n' roll
760 m
Gogo Fruit
820 m
Ristoranti Ristoranti
Ristoranti
680 m
Itoya
710 m
Voglia di pizza
740 m
La Vecchia Varese
740 m
Polpo Fritto
740 m
Mostra tutto

Caratteristiche

Rif.:
61162045
Piano:
3 di 4 (ultimo Piano)
Balconi:
1
Terrazzi:
1
Camere da letto:
2
Arredamento:
Assente
Mostra tutto
Prezzo Prezzo
€ 119.000
Rata mutuo Rata mutuo
€ 568 / mese
Spese annue Spese annue
€ 1.500
Proponi il tuo prezzoProponi il tuo prezzo

Altre caratteristiche

Classe Energetica

G
G
G
G
G
G
G
G
G
EP globale non rinnovabile:
300.00 kW h/m² anno
EP globale rinnovabile:
300.00 kW h/m² anno
Anno di costruzione:
1970
Riscaldamento:
Centralizzato
Tipo impianto:
A radiatori
Tipo alimentazione:
Metano

Ti interessa visionare l'immobile?

Fissa un appuntamento  Fissa un appuntamento

Richiedi informazioni

Clicca su Leggi per aprire l'informativa
* Questi campi sono obbligatori

Calcola il tuo mutuo

Semplice e senza impegno
Anticipo

( % )
Mutuo

( % )

pochi semplici passi

inserisci i tuoi dati
Questionario completato
Grazie per aver richiesto un appuntamento senza impegno con un nostro Consulente del Credito e Assicurativo.

Hai inserito correttamente tutti i dati necessari e a breve riceverai una e-mail con un link da convalidare per inviare i tuoi dati.
Affiliato
Studio Varese Sas
Viale Luigi Borri, 100 21100 Varese (VA)
Viale Luigi Borri, 100 21100 Varese (VA)
Zona: Varese Viale Borri
Mostra su mappa
Orari: Lun - Ven: 09.00 - 12.30 / 15.00 - 19.30 Sabato: 09.00 - 12.30
Affiliato
Studio Varese Sas
Viale Luigi Borri, 100 21100 Varese (VA)

2026 Tecnocasa Franchising S.p.A. - P. IVA 08365160152 - Via Monte Bianco 60/A 20089 Rozzano (MI). Ogni agenzia ha un proprio titolare ed è autonoma. Privacy policy | Policy utilizzo | Cookie policy