Quadrilocale in vendita

Varese, Viale Luigi Borri - Bizzozero
€ 219.000
4 locali 4 locali
156 Mq 156 Mq
2 bagni 2 bagni

Quadrilocale in vendita

Varese, Viale Luigi Borri - Bizzozero

Descrizione annuncio

Segui la nostra pagina Facebook “Gruppo Tecnocasa (Varese Viale Borri)” o il nostro profilo Instagram per visionare in anteprima le nostre nuove proposte immobiliari.

Vendita Appartamento con giardino – Varese, Zona Viale Borri

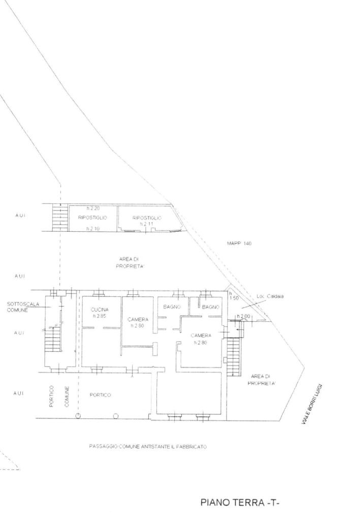
In posizione strategica, a pochi passi dall’Ospedale, dall’Università e dai principali servizi, proponiamo in vendita un appartamento al piano terra, ristrutturato a fine anni ’90, inserito in un contesto tranquillo e privo di spese condominiali.

L’immobile si apre su un ingresso indipendente che conduce alla cucina abitabile con sala da pranzo. Il soggiorno, ampio e luminoso, offre spazi generosi e ben distribuiti. La zona notte è composta da due camere da letto, di cui una con bagno privato, oltre a un secondo bagno a servizio dell’abitazione. La metratura complessiva consente, con estrema facilità, di ricavare una terza camera, rendendo l’immobile particolarmente adatto anche a famiglie numerose o a chi necessita di uno studio.

Completano la proprietà un giardino di proprietà ideale per momenti di relax all’aperto, una cantina, due ripostigli esterni e un ulteriore giardino. È inoltre presente un portico utilizzabile come due comodi posti auto coperti, un valore aggiunto importante per la zona. Il riscaldamento è autonomo e il contesto, composto da poche unità abitative, garantisce privacy e tranquillità.

La posizione rappresenta uno dei principali punti di forza, grazie alla vicinanza a ospedale, università e a tutti i servizi di Viale Borri, facilmente raggiungibili anche a piedi.

Soluzione ideale per chi cerca ampi spazi, indipendenza e comodità, senza rinunciare a una zona ben servita e strategica.

Devi vendere o permutare il tuo immobile per acquistare? Chiamaci per una valutazione del tuo immobile gratuita e senza impegno.

Mostra tutto

Nelle vicinanze

Trasporto pubblico Trasporto pubblico
Malnate
Malnate
2,3 Km
Bizzozero (Via Nabresina)
Bizzozero (Via Nabresina)
390 m
Monte Generoso (Via dei Vigno)
Monte Generoso (Via dei Vigno)
700 m
Gazzada-Schianno-Morazzone
Gazzada-Schianno-Morazzone
2,4 Km
Ricariche auto elettriche Ricariche auto elettriche
Palestre Sporting | EnelX
900 m
EnelX Parcheggio del Bollerino
1,9 Km
Varese Sebenico | EnelX
2,0 Km
Iper Varese
2,1 Km
Ristorante Crotto Valtellina | e-Station
2,1 Km
Scuole Scuole
Scuole
150 m
Università degli Studi dell'Insubria - Campus Bizzozero
690 m
Centro di Formazione Personale Varese
970 m
Istituto Comprensivo Anna Frank
1,5 Km
Le Costellazioni
1,9 Km
Farmacia Farmacia
Farmacia
140 m
Farmacia Santa Maria
1,3 Km
Dispensario farmaceutico Baraldi
1,9 Km
Iper Farma
2,0 Km
Farmacia dell'ospedale
2,1 Km
Ospedali Ospedali
Padiglione 17 - C.R.T.
840 m
Ospedale di Circolo - Fondazione Macchi
2,1 Km
Ospedali
2,3 Km
Ospedale Filippo Del Ponte
2,9 Km
Supermercati Supermercati
Carrefour
920 m
LD
1,6 Km
Esselunga di Viale Borri
1,8 Km
Iper
2,0 Km
Tigros
2,3 Km
Negozi Negozi
Negozi
1,4 Km
Buratti
2,1 Km
Bar Bar
Non solo bar
1,5 Km
Bar
1,6 Km
Bar Nilo
1,7 Km
Rock'n' roll
2,0 Km
Tsunami Café
2,2 Km
Ristoranti Ristoranti
Ristoranti
200 m
Al vecchio convento
320 m
Pizzeria "Senza Nome"
400 m
La vecchia cantina
450 m
Rojac Cafè
860 m
Mostra tutto

Caratteristiche

Rif.:
61154654
Piano:
Terra di 1
Totale piani:
1
Posti auto:
2
Balconi:
1
Camere da letto:
2
Mostra tutto
Prezzo Prezzo
€ 219.000
Rata mutuo Rata mutuo
€ 1.045 / mese
Spese annue Spese annue
€ 0
Proponi il tuo prezzoProponi il tuo prezzo
Immobile valutato con T·Valuta

Classe Energetica

G
G
G
G
G
G
G
G
G
EP globale non rinnovabile:
350.00 kW h/m² anno
EP globale rinnovabile:
350.00 kW h/m² anno
EP invernale del fabbricato:
EP estiva del fabbricato:
Anno di costruzione:
1960
Riscaldamento:
Autonomo
Tipo impianto:
A radiatori
Tipo alimentazione:
Metano

Ti interessa visionare l'immobile?

Fissa un appuntamento  Fissa un appuntamento

Richiedi informazioni

Clicca su Leggi per aprire l'informativa
* Questi campi sono obbligatori

Calcola il tuo mutuo

Semplice e senza impegno
Anticipo

( % )
Mutuo

( % )

pochi semplici passi

inserisci i tuoi dati
Questionario completato
Grazie per aver richiesto un appuntamento senza impegno con un nostro Consulente del Credito e Assicurativo.

Hai inserito correttamente tutti i dati necessari e a breve riceverai una e-mail con un link da convalidare per inviare i tuoi dati.
Affiliato
Studio Varese Sas
Viale Luigi Borri, 100 21100 Varese (VA)
Viale Luigi Borri, 100 21100 Varese (VA)
Zona: Varese Viale Borri
Mostra su mappa
Orari: Lun - Ven: 09.00 - 12.30 / 15.00 - 19.30 Sabato: 09.00 - 12.30
Affiliato
Studio Varese Sas
Viale Luigi Borri, 100 21100 Varese (VA)

2026 Tecnocasa Franchising S.p.A. - P. IVA 08365160152 - Via Monte Bianco 60/A 20089 Rozzano (MI). Ogni agenzia ha un proprio titolare ed è autonoma. Privacy policy | Policy utilizzo | Cookie policy